Barriefreiheit-Werkzeuge

Skip to main content

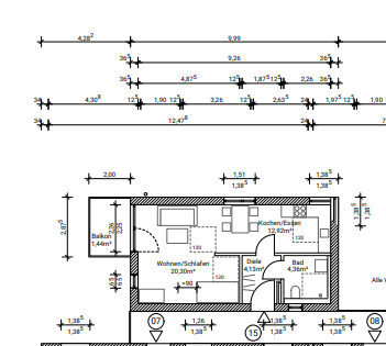
Die Gemeinde Mauern vermietet ab dem 15.06.2026 eine 2-Zimmer-Wohnung mit 56,94 m² Wohnfläche zusammen mit einem Tiefgaragenstellplatz. Nähere Informationen können Sie den Vergaberichtlinien entnehmen. Bei Interesse reichen Sie bitten einen Antrag bei der Gemeinde Mauern, Frau Maier, ein. Bearbeitet werden können nur

  • vollständig ausgefüllte Anträge mit
  • Vorlage von allen geforderten Nachweisen / Belegen sowie einer positiven Schufa-Auskunft.

Bewerbungsfrist: 31.05.2026

Eingereichte Anträge werden von der Verwaltung geprüft und anhand eines Punktesystems ausgewertet.